Prodej rodinného domu 130 m², pozemek 317 m² Morkovice-Slížany
2460000
Ve výhradním zastoupení nabízím k prodeji prostorný rodinný dům určený k rekonstrukci v Morkovicích-Slížanech. Dům stojí v tiché, obytné ulici s výbornou dostupností služeb a pohodlným parkováním přímo ve vlastní garáži. Na dům navazuje dvorek a za ním pokračuje zahrada se zelení. Celková plocha pozemku včetně domu a garáže je 317 m².
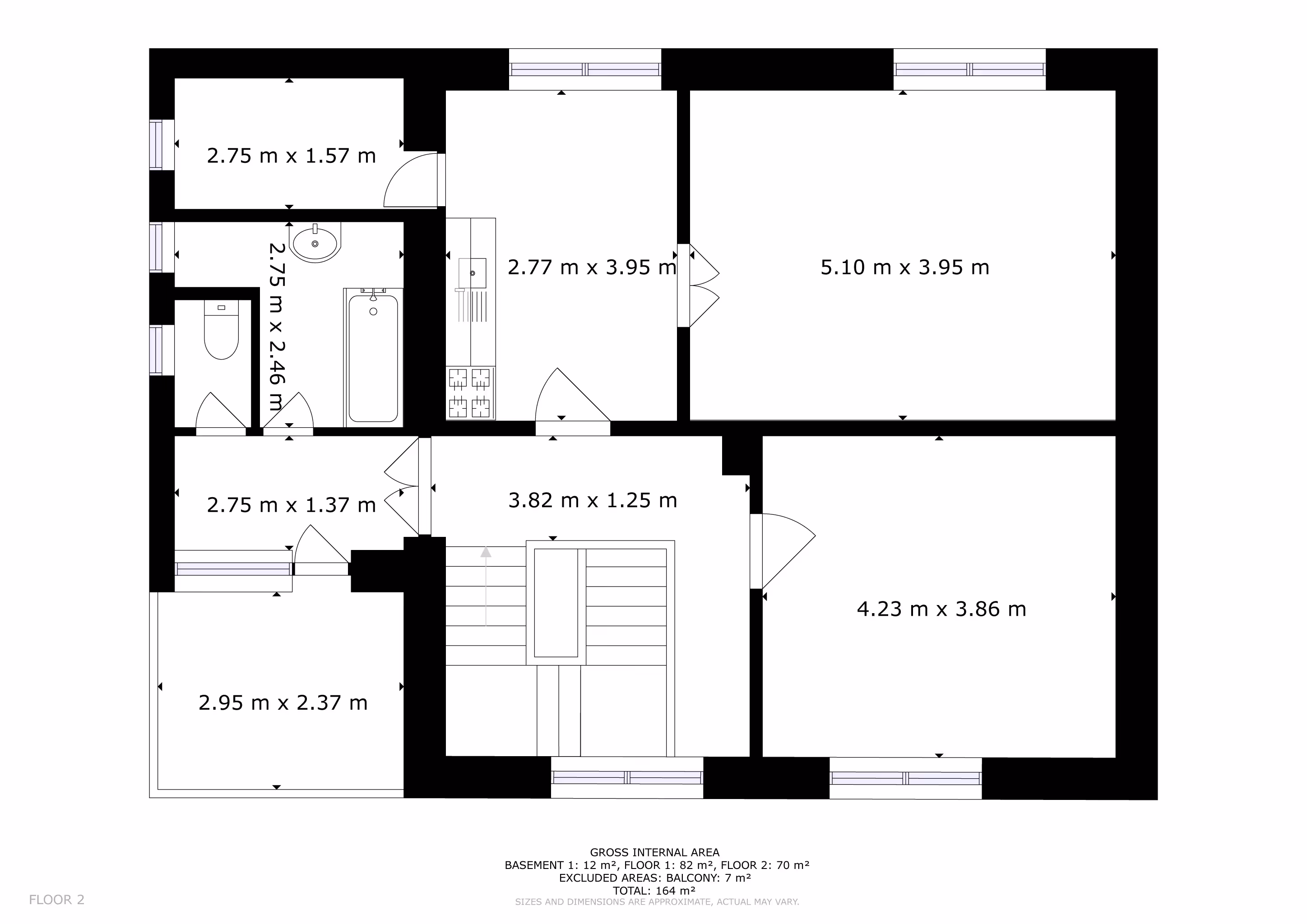
Užitná plocha domu činí zhruba 130 m² ve dvou nadzemních podlažích. Přízemí tvoří vstupní chodba, jeden pokoj do ulice a další dvě místnosti orientované do dvora – skvělý základ pro budoucí velkorysý obývací prostor s kuchyní a jídelnou s přirozeným napojením na dvorek. V patře jsou dva samostatné pokoje, kuchyň, koupelna, WC a předsíň, ze které se vychází na balkón s výhledem do okolní zástavby.
Konstrukčně jde převážně o cihlové zdivo, stropy na ocelových nosnících, dřevěný krov; převážná část oken je plastových s dvojsklem, část původních. Dům je napojen na elektřinu, vodu, kanalizaci i plyn; vytápění zajišťuje plynový kotel s deskovými radiátory. Stav je původní, bez zateplení a bez hydroizolace spodní stavby, všechny rozvody včetně elektroinstalace jsou původní – kompletní rekonstrukce je nutná. V části obvodového a suterénního zdiva jsou patrné projevy vlhkosti.
Morkovice-Slížany jsou menší, ale živé město v okrese Kroměříž, které se rozkládá na úpatí Chřibů. Nabízí příjemné bydlení s výhodami menší obce a zároveň plnou občanskou vybavenost. Najdete zde mateřskou i základní školu, lékárnu, poštu a místní obchody, takže pro každodenní potřeby nemusíte nikam dojíždět.
Město má i bohaté sportovní a kulturní zázemí – fotbalové hřiště, sportovní halu, koupaliště, dětská hřiště i kulturní dům, kde se konají různé akce a společenské události. V okolí je krásná příroda vybízející k výletům.
Výhodou je také poloha – do Kroměříže, Vyškova i Prostějova dojedete pohodlně autem za 20–25 minut, což z Morkovic-Slížan dělá ideální místo pro ty, kdo chtějí bydlet v klidnějším prostředí, ale s dobrou dostupností do větších měst.
Tento dům není hotový produkt — je to čisté plátno se skvělou adresou, garáží a zelenou zahradou za domem. Pokud hledáte místo, kde dáte svému bydlení jasný rukopis, přijďte si ho projít. Rád vám během prohlídky ukážu i možné dispoziční varianty a probereme postup rekonstrukce krok za krokem.





























